Kungsgatan 16, Landskrona, (780 kvm)

Centralt belägen kontorslokal i ett unikt byggnadsminne

Nu finns möjlighet att etablera verksamhet i en representativ och välrenommerad kontorsfastighet på Kungsgatan 16, belägen i det historiska gamla Sockerbolagets fastighet. Fastigheten erbjuder en professionell karaktär där historia och funktion möts.

Lokalen präglas av generösa och effektiva kontorsytor av varierande storlek som lämpar sig väl för kontor, utbildning eller vård.    

Fastigheten uthyres i sin helhet.

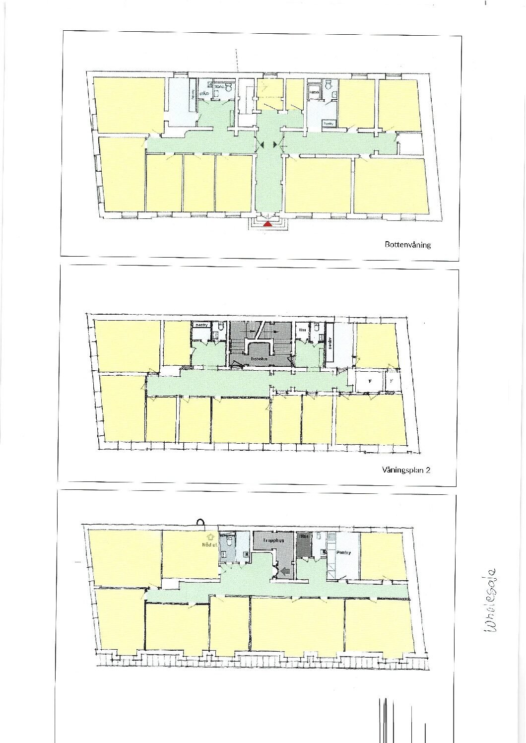
Planlösning Kungsgatan 16, Landskrona

YTOR: 780 kvm + 200 kvm

BEKVÄMLIGHETER: Fiberanslutning, Kök/Pentry, WC

BESKRIVNING: Lokalerna är fördelade på tre våningar plus källare. Rummen är av olika storlek och karaktär. Tidigare hyresgäster är utbildningsverksamhet, revisionbyrå och annan kontorsverksamhet.

Hiss finns till samtliga våningsplan. 

KOMMUNIKATION: Centralt belägen nära Kommunhuset, Stortorget och Citadellet.

Om Primalokaler

Primalokaler är en fastighetsförmedling specialiserad på kommersiella lokaler som brinner för att hjälpa företag att hitta den perfekta lokalen för att växa och blomstra. Med expertrådgivning och ett personligt engagemang guidar vi våra kunder genom hela processen, från behovsanalys till kontraktsskrivning, och ger dem trygghet och kunskap att fatta välgrundade beslut i valet av strategiskt viktiga lokaler. Kontakta oss idag för att diskutera dina behov och hur vi kan hjälpa dig att hitta rätt lokal för ditt företag.


TagGAR

Centrum, Landskrona


Liknande inlägg

Kontorshotell Malmö

Kontorshotell Malmö

Stortorget, Lund (120 kvm)

Stortorget, Lund (120 kvm)